立磨工作原理有传统立磨与新版立磨区别,新型高效立磨是一种理想的大型粉磨设备,广泛应用于水泥、电力、冶金、化工、非金 属矿等行业。它集破碎、干燥、粉磨、分级输送于一体,生产效率高,可将块状、颗粒状及粉状原料磨成所要求的粉状物料。比较常见的立磨减速机有二级减速式立磨齿轮减速机,三级齿轮减速式立磨减速机,双行星三级减速式立磨减速机。在立磨系统中,主要设备通常包括:磨主电机,磨主齿轮减速机,减速机润滑装置,主电机稀油站,吐渣斗提,液压装置,磨辊润滑装置,密封风机,磨机喷水装置,回转锁风阀,振动喂料机,立磨选粉装置。
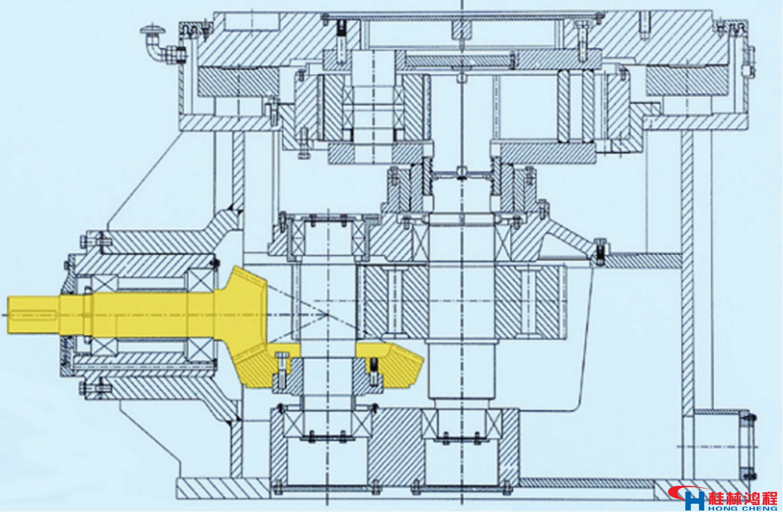
二级减速式立磨齿轮减速机(见图2)

此减速机采用一级锥齿轮、二级行星轮结构。
主要优点:结构简单、安全可靠;效率高、运转平稳:易与安装维护等。
(1)锥齿轮传动部分
齿轮减速机输入级为一对锥齿轮。大小齿轮均采用渗碳淬火钢进行制造,并采用硬齿面加工方法加工而成,强度很高。小锥齿轮和大锥齿轮均通过轴承座装入下壳体中,两轴承座法兰下设有调整垫,用于调整齿轮副接触区的位置和齿侧间隙。
(2)行星级齿轮传动部分
行星级齿轮传动主要由太阳轮、行星轮、内齿圈等组成。工作时太阳轮浮动,以便使其轮齿同时和三个行星轮均匀接触,达到均载目的;行星轮安装在行星架上,在绕自身轴线传动的同时,也随行星架绕太阳轮公转。内齿圈固定在壳体上。太阳轮,行星轮均为渗碳淬火后磨齿齿轮,内齿圈为调质齿轮。
(3)鼓形内齿套
在两级齿轮传动之间设置了鼓形内齿套,其作用是连接两级齿轮之间的传动。内齿套随行星级中的太阳轮一起浮动。
(4)平面滑动推力轴承
为承受磨机工作中的动静载荷,减速机上部设置了平面滑动推力轴承,靠高压油在推力盘和推力瓦之间行成一层动压润滑油膜进行工作。
二:三级齿轮减速式立磨减速机(见图3)

立磨减速机维修技巧请联系立磨厂家
桂林鸿程矿山设备制造有限责任公司是中国粉体设备行业的龙头企业,是专业开发、设计、生产碾磨、破碎及超细粉碎设备的专业生产 公司。鸿程拥有各项专利20余项,具有自主出口权,是国内主要的粉体设备制造企业和出口基地。目前立式磨粉机有经典款两种,HLM立式磨粉机和HLMX超细立式磨粉机.立磨减速机维修技巧请联络桂林鸿程。